718 Front Gar HwySwansea, MA 02777
Due to the health concerns created by Coronavirus we are offering personal 1-1 online video walkthough tours where possible.



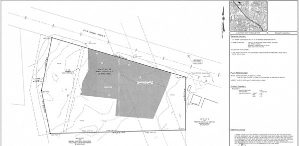
Location!! Location!! Fabulous Opportunity to bring your business HERE! Located on highly traveled Route 6 in Swansea, this 2.9 acre acres with 485 feet of frontage zoned General Business is just what you need! With nearby neighbors like McDonalds, Target, Marshall’s, Wendy’s, DD, PetSmart, Ocean State Job Lot, the newly purchased Swansea Mall surely the 30,000 vehicles per day will bring you tremendous new business! Property has electric, town water and gas at street. Why not capitalize on this area’s strong demographics and proximity to Route 195‘s highway access with a new free standing building or new commercial plaza! This Parcel’s location is a destination area for the local residents and is only 3 miles from Fall River, Massachusetts and 14 miles southeast of Providence, Rhode Island. The population within a five-mile radius is over 140,000 residents! Call Today to learn more !
| 3 months ago | Listing updated with changes from the MLS® | |
| 3 years ago | Status changed to Pending | |
| 7 years ago | Listing first seen on site |
The property listing data and information, or the Images, set forth herein were provided to MLS Property Information Network, Inc. from third party sources, including sellers, lessors, landlords, and public records, and were compiled by MLS Property Information Network, Inc. The property listing data and information, and the Images, are for the personal, non-commercial use of consumers having a good faith interest in purchasing, leasing or renting listed properties of the type displayed to them and may not be used for any purpose other than to identify prospective properties which such consumers may have a good faith interest in purchasing, leasing or renting. MLS Property Information Network, Inc. and its subscribers disclaim any and all representations and warranties as to the accuracy of the property listing data and information, or as to the accuracy of any of the Images, set forth herein.
Last checked 2026-03-06 12:10 AM UTC



Did you know? You can invite friends and family to your search. They can join your search, rate and discuss listings with you.