Save
Ask
Tour
Hide
$469,900
218 Days On Site
121 East Washington Street 8North Attleboro, MA 02760
For Sale|Mobile Home|Pending
2
Beds
2
Total Baths
2
Full Baths
1,536
SqFt
$306
/SqFt
2025
Built
County:
Bristol
Due to the health concerns created by Coronavirus we are offering personal 1-1 online video walkthough tours where possible.
Call Now: 401-559-7674
Is this the listing for you? We can help make it yours.
401-559-7674
Save
Ask
Tour
Hide
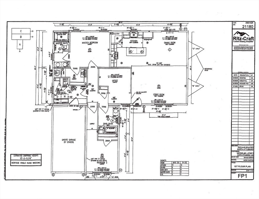
55+ Community - Phase 3 is now under construction with a total of 13 lots. L -Shaped ranch with front 1 car garage, 2 bedrooms, 2 full baths, den/office, living room and kitchen fully appliance with dining area and great open floor plan. Sliding glass door leads to 8 x 10 composite deck. DO NOT HESITATE TO REQUEST A PRIVATE APPOINTMENT TO VIEW FLOOR PLAN AND ALL DETAILS AND RESERVE A LOT OF CHOICE. Community will finish out with a total of 44 homes. All underground utilities as well as a great central location.
Save
Ask
Tour
Hide
Listing Snapshot
Price
$469,900
Days On Site
218 Days
Bedrooms
2
Inside Area (SqFt)
1,536 sqft
Total Baths
2
Full Baths
2
Partial Baths
N/A
Lot Size
0.18 Acres
Year Built
2025
MLS® Number
73402213
Status
Pending
Property Tax
N/A
HOA/Condo/Coop Fees
$680
Sq Ft Source
Owner
Friends & Family
Recent Activity
| 2 weeks ago | Listing updated with changes from the MLS® | |
| 2 weeks ago | Status changed to Pending | |
| 7 months ago | Price changed to $469,900 | |
| 7 months ago | Listing first seen on site |
General Features
Acres
0.18
Attached Garage
Yes
Disclosures
55+ Community all residents to qualify. One pet allowed. Monthly fee of: $680.00 included: snow plowing of roads driveway and walkway to front stepstrash and recyclinglawn mowning and landscapingirrigation system. Homes are ownedland is leased. Taxes paid by owner/developer of land.
Foundation
Concrete PerimeterSlab
Garage
Yes
Garage Spaces
1
Parking
PavedAttachedGarage Door OpenerStorageOff StreetDrivewayGarage
Parking Spaces
3
Property Sub Type
Mobile Home
Sewer
Public Sewer
SqFt Above
1536
SqFt Total
1536
Water Source
Public
Zoning
0
Interior Features
Appliances
RangeDishwasherDisposalMicrowaveRefrigeratorRange HoodPlumbed For Ice Maker
Cooling
Central Air
Electric
220 VoltsCircuit Breakers200+ Amp Service
Flooring
VinylCarpetLaminate
Heating
Natural GasCentralForced Air
Interior
Master Downstairs
Laundry Features
Electric Dryer HookupWasher Hookup
Window Features
Insulated WindowsScreens
Bathroom 1
Level - First
Bathroom 2
Level - First
Bedroom 2
Level - First
Dining Room
Level - First
Kitchen
Level - First
Living Room
Level - First
Master Bedroom
Level - First
Office
Level - First
Save
Ask
Tour
Hide
Exterior Features
Exterior
Rain GuttersLighting
Lot Features
ClearedLevelLandscaped
Patio And Porch
Deck
Road Frontage
Private Road
Roof
Shingle
Windows/Doors
Insulated WindowsScreens
Community Features
Association Dues
680
Community Features
GolfSidewalks
Financing Terms Available
Contract
Roads
Paved
Senior Community
Yes
Listing courtesy of The Roberta K Team of Berkshire Hathaway HomeServices Evolution Properties
The property listing data and information, or the Images, set forth herein were provided to MLS Property Information Network, Inc. from third party sources, including sellers, lessors, landlords, and public records, and were compiled by MLS Property Information Network, Inc. The property listing data and information, and the Images, are for the personal, non-commercial use of consumers having a good faith interest in purchasing, leasing or renting listed properties of the type displayed to them and may not be used for any purpose other than to identify prospective properties which such consumers may have a good faith interest in purchasing, leasing or renting. MLS Property Information Network, Inc. and its subscribers disclaim any and all representations and warranties as to the accuracy of the property listing data and information, or as to the accuracy of any of the Images, set forth herein.
Last checked 2026-02-13 11:11 AM UTC
The property listing data and information, or the Images, set forth herein were provided to MLS Property Information Network, Inc. from third party sources, including sellers, lessors, landlords, and public records, and were compiled by MLS Property Information Network, Inc. The property listing data and information, and the Images, are for the personal, non-commercial use of consumers having a good faith interest in purchasing, leasing or renting listed properties of the type displayed to them and may not be used for any purpose other than to identify prospective properties which such consumers may have a good faith interest in purchasing, leasing or renting. MLS Property Information Network, Inc. and its subscribers disclaim any and all representations and warranties as to the accuracy of the property listing data and information, or as to the accuracy of any of the Images, set forth herein.
Last checked 2026-02-13 11:11 AM UTC
Neighborhood & Commute
Source: Walkscore
Disclosure: Community information and market data powered by Constellation Data Labs. Information is deemed reliable but not guaranteed.
Save
Ask
Tour
Hide



Did you know? You can invite friends and family to your search. They can join your search, rate and discuss listings with you.